0
Saltar al contenido
Inicio
Trabajo
Contacto
Abrir menú
Cerrar menú
Inicio
Trabajo
Contacto
Abrir menú
Cerrar menú
Inicio
Trabajo
Contacto
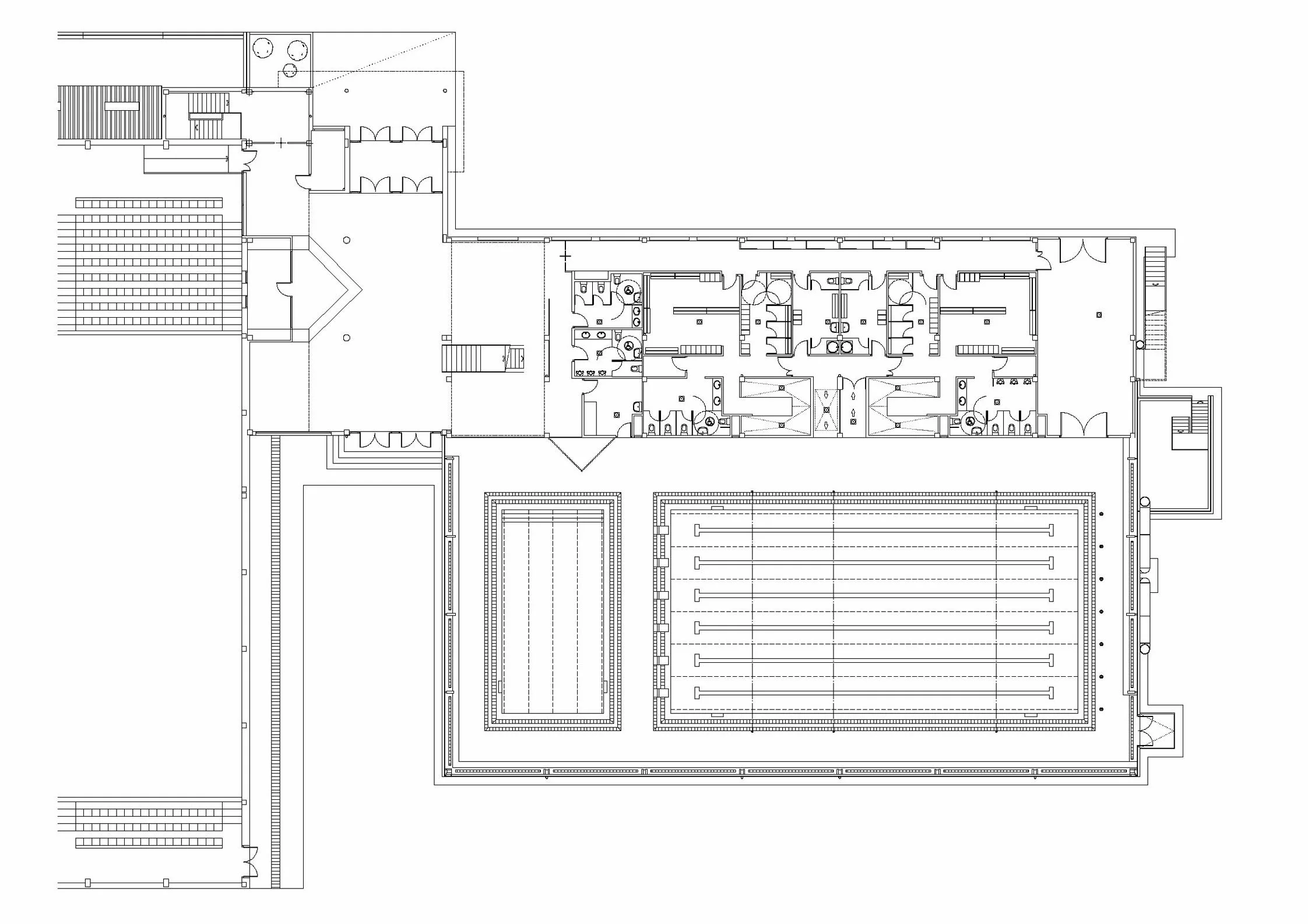
PISCINA CUBIERTA
TEXTO
Fecha:
1999