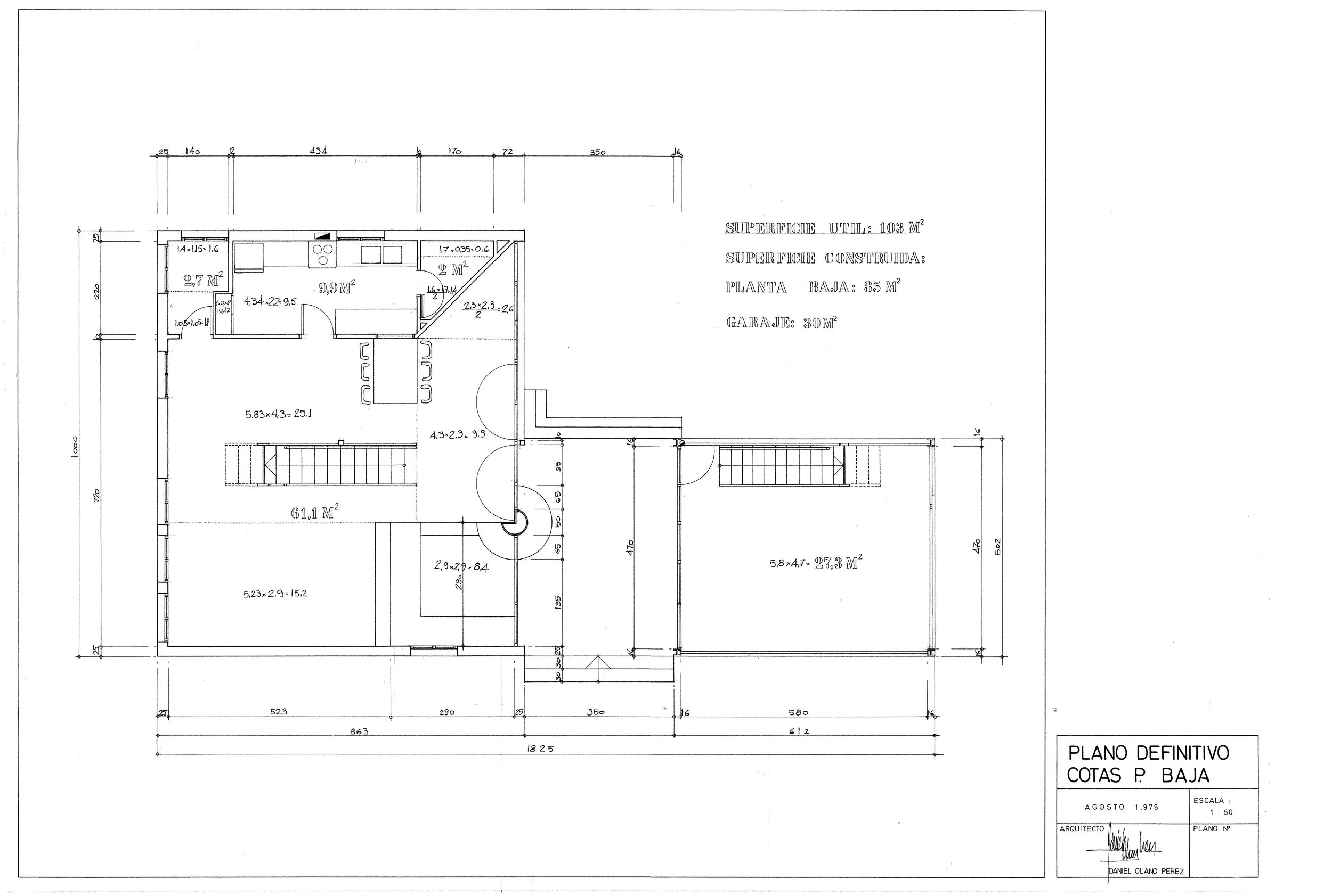
CASA IÑAKI I

Fecha: 1977

CASA IÑAKI II

Fecha: 1977