0
Saltar al contenido
Inicio
Trabajo
Contacto
Abrir menú
Cerrar menú
Inicio
Trabajo
Contacto
Abrir menú
Cerrar menú
Inicio
Trabajo
Contacto
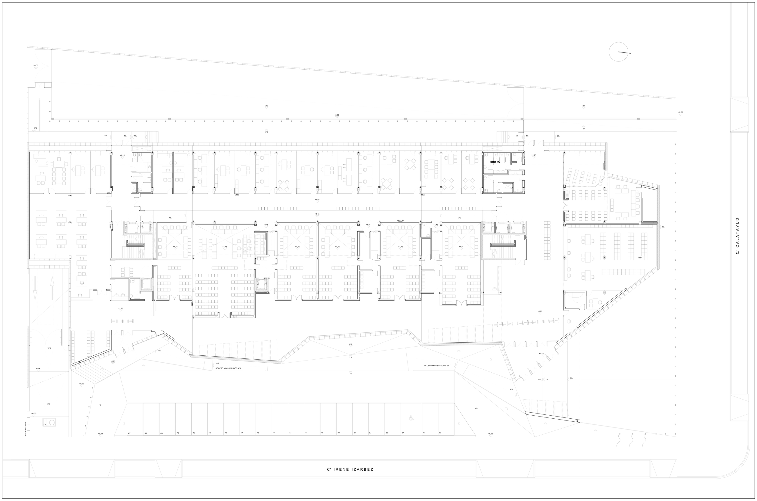
Palacio de Justicia - Huesca
TEXTO
Fecha: 2009