0
Saltar al contenido
Inicio
Trabajo
Contacto
Abrir menú
Cerrar menú
Inicio
Trabajo
Contacto
Abrir menú
Cerrar menú
Inicio
Trabajo
Contacto
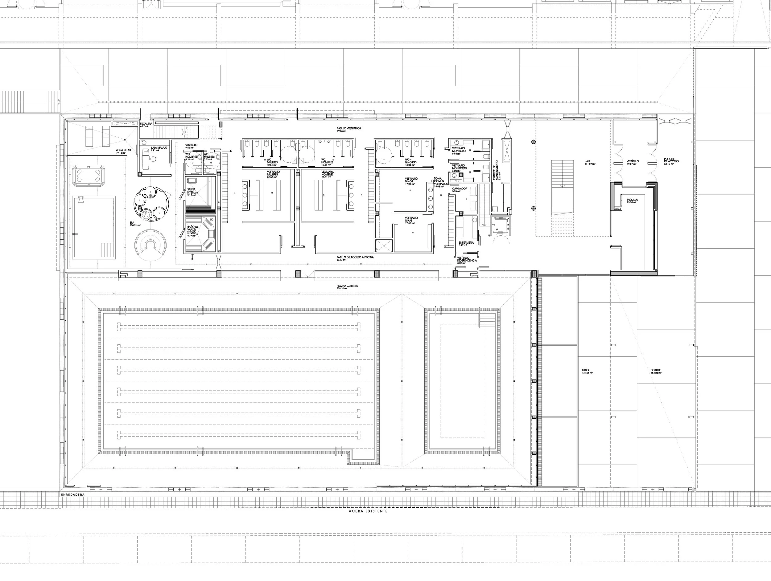
Piscina cubierta - Cuarte
TEXTO
Fecha: 2010